Nowoczesne, przestronne i gotowe do zamieszkania

Mieszkanie na sprzedaż
865 000,00 PLN , Pow. 62,55 m2
Typ nieruchomości:
Mieszkanie
Powierzchnia:
62,55 m2
Typ transakcji:
sprzedaż
Liczba pokoi:
3
Lokalizacja:
Warszawa Białołęka , Mariana Hemara
Rok budowy:
2023
Piętro:
1 na 3
Numer oferty:
FS424069
Cena za m2:
13 828,94 PLN
Biuro nieruchomości FindSQUARE z przyjemnością zaprasza do zapoznania się z wyjątkową ofertą mieszkania, idealnego dla młodych rodzin czy pary. Prezentowana nieruchomość to przestronne 3-pokojowe mieszkanie o powierzchni 62,55 m², usytuowane na 1 piętrze 3 piętrowego budynku. Jest położone w spokojnej okolicy na terenie zamkniętego osiedla z całodobową ochroną.
Serdecznie zachęcamy do obejrzenia wirtualnego spaceru, który pozwoli lepiej poznać to wyjątkowe miejsce.​

O mieszkaniu
Mieszkanie jest nowoczesne, ale również bardzo przytulne w odczuciu. 
Stan techniczny lokalu jest bez zarzutu z racji, że wykończony został niecałe 3 lata temu. Mieszkanie jest bardzo dobrze wyposażone i nie wymaga dodatkowych nakładów finansowych.

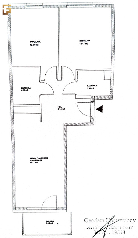
Wejście do mieszkania prowadzi przez komfortowy przedpokój. Bezpośrednio z przedpokoju mamy dostęp do garderoby, gdzie możemy przechowywać odzież wierzchnią oraz przedmioty gospodarcze.
Przestronny salon z otwartą kuchnią skierowany jest na południe, dzięki czemu pomieszczenie jest doskonale doświetlone. Z salonu mamy wyjście na balkon, który pomieści 4 osoby. Sypialnia utrzymana jest w harmonijnej stylistyce, co sprzyja wyciszeniu i komfortowi. Centralnym punktem pomieszczenia jest wygodnych rozmiarów łóżko uzupełnione o stoliki nocne. W pomieszczeniu znajduje się również biurko do pracy.  
Drugi pokój to funkcjonalna, elastyczna przestrzeń, którą można łatwo dostosować do różnych potrzeb. Może pełnić rolę pokoju dziecięcego, gabinetu czy pokoju gościnnego. Neutralna aranżacja pozwala na łatwą zmianę funkcji pomieszczenia w zależności od aktualnych potrzeb domowników.
Mieszkanie jest dwustronne, więc z łatwością można jest przewietrzyć. 

W skład mieszkania wchodzi:
Salon z aneksem kuchennym 21,17 m²
Sypialnia 13,47 m²
Pokój 12,17 m²
Łazienka 4,28 m²
Garderoba 3,32 m²
Przedpokój 8,14 m²
Balkon 5,12 m²

Do mieszkania przynależy stanowisko postojowe w garażu podziemnym dodatkowo płatne 40 000 zł.

Osiedle i budynek
Osiedle oddane do użytku w 2023r. charakteryzuje się niską zabudową, zamkniętym terenem z całodobową ochroną i monitoringiem, co zapewnia bezpieczeństwo mieszkańcom. Wewnątrz osiedla znajduje się różnorodna roślinność, liczne ławki, staw oraz plac zabaw. 

Lokalizacja
Ulica Hemara to spokojna część Białołęki, idealna dla rodzin z dziećmi. W okolicy znajdują się liczne placówki oświatowe (zaznaczone na ujęciach z powietrza).
W pobliżu znajduje się przystanek autobusowy linii 134, 226, 326, którymi można dotrzeć do stacji Metro Bródno w 11 minut, a do stacji Metro Marymont w 17 minut. Dla zmotoryzowanych mieszkańców istotna jest bliskość trasy S8, co ułatwia poruszanie się po mieście.​
W promieniu 1 km dostępne są sklepy, restauracje, punkty usługowe oraz obiekty sportowe, co zapewnia wygodę codziennego życia.
W 15 minut pieszo dotrzemy do Kanału Żerańskiego. 

Atuty mieszkania:
- pełna własność z KW - możliwość posiłkowania się kredytem hipotecznym;
- dogodny układ pomieszczeń i możliwość szybkiego wprowadzenia;
- idealne dla rodziny lub pary; 
- budynek i mieszkanie obejmuje jeszcze okres deweloperski; 
- prężnie rozwijająca się okolica. 

Zapraszam do kontaktu i na prezentację.

ZALETY ZAKUPU Z NASZYM BIUREM:
- PEŁNE BEZPIECZEŃSTWO TRANSAKCJI, NALEŻYMY DO WSPON I PFRN
- DOKŁADNIE WERYFIKUJEMY STAN PRAWNY NIERUCHOMOŚCI
- WYKAZUJEMY NIEZWYKŁĄ DBAŁOŚĆ O SZCZEGÓŁY W CAŁYM PROCESIE KUPNA/SPRZEDAŻY
- OFERUJEMY POMOC ZAUFANYCH EKSPERTÓW KREDYTOWYCH, KTÓRZY PRZEPROWADZĄ PAŃSTWA PRZEZ CAŁY PROCES KREDYTOWY, DAJĄC GWARANCJĘ NAJLEPSZEJ OFERTY


Nieprawidłowy adres E-mail